Opis nekretnine

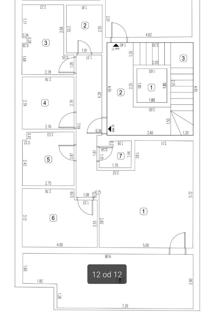
Lesnina – NOVOGRADNJA – petosoban stan površine 102m2 (78m2 stambeni prostor + 24m2 terasa) na petom spratu u stambenoj zgradi s liftom. Podno grejanje (takođe i na terasi), tarket, spušteni plafoni gipsom, kupatilo + toalet.
Agencijska provizija za kupca je 2%, odnosno minimalno 500 evra.

Šifra oglasa: s_1165

Cena: 175.000€

Osnovni podaci:

  • Mesto: Zrenjanin
  • Deo grada: Lesnina
  • Tip: Stan
  • Površina nekretnine: 102m²
  • Broj sprata: 5
  • Sobnost: Četvorosoban i više
  • Broj spavaćih soba: 4
  • Broj kupatila: 2
  • Grejanje: Podno grejanje

Opremljenost

Lift

Klima

Terasa

Potrebne su vam dodatne informacije? Kontaktirajte agenta.